47件
-
ペット可
3,980万円
5階 / 58.66㎡ / 2LDK /築7年 /7階建
- ペット飼育可
- ペット相談
- エレベーター
- 耐震構造
- 24時間ゴミ出し可
- 床暖房
朝日がたっぷり入る「南東向き」です!朝から明るい光の中で朝食をとり、そのまま気持ちよく一日をスタートできるのは、この向きならではの特権ですね。
平成30年築という新しさに加え、食洗機や床暖房といった「あったら嬉しい」設備がしっかり揃っているのも大きな魅力です 。家事の負担を減らしつつ、冬場も温かく過ごせる機能的な住まいになっています 。
さらに、生活のしやすさも良いです!人気のスーパー「ヤオコー」がすぐ近く(約90m)にあり、医療センターも徒歩圏内(約200m)という安心感があります 。2駅2路線使える立地なので、お出かけのフットワークも軽くなりそうですね 。
大切なペットと一緒に、この明るく快適なお部屋で新しい生活をイメージしてみませんか? 実際のお部屋の様子が気になった方は、ぜひお気軽にお問い合わせください! -
パノラマ
新築
3,690万円
- / 97.70㎡ / 2LDK+2S(納戸) /予定 /3階建
- 都市ガス
- 陽当り良好
- システムキッチン
- カウンターキッチン
- 食器洗い乾燥機
- 浴室乾燥機
「駅近の利便性と、家族それぞれのプライベート空間を両立したい」そんな願いを叶えます。
最大の特徴は、3階建てならではの居住空間の広さと、随所に設けられた機能的な収納計画です。1階には約4.5畳の洋室と納戸を配置 。リモートワークやお子様のプレイスペース、さらには来客用としても柔軟に活用できます。
2階へ上がると、約16.7畳の広々としたLDKが広がります 。キッチンからリビング全体が見渡せる対面式を採用しており、家族との会話を楽しみながらお料理ができる設計です。このフロアに水回りが集約されているため、家事動線が非常にスムーズなのも見逃せないポイントです。
3階には約6.9畳の主寝室と約5.3畳の洋室があり 、どのお部屋も収納が充実。建物はZEH水準の断熱性能を誇り 、夏は涼しく冬は暖かい、一年中快適な室内環境を提供します。駅徒歩11分の資産価値と、暮らしやすさを追求した間取りが、共働き世帯やアクティブなご家族の新生活を力強くバックアップします。 -
パノラマ
新築
4,390万円
- / 101.85㎡ / 4LDK /予定 /2階建
- 駐車2台可
- 都市ガス
- ウォークインシューズクロゼット
- システムキッチン
- 浴室1坪以上
- バルコニー
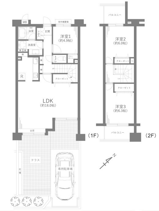
家族の成長に寄り添い、一人ひとりのプライバシーとリビングでの一体感を両立させたのがE号棟です 。約35.38坪の土地に、生活を豊かにする工夫が詰め込まれた4LDKの邸宅です 。
間取りの設計において、まず工夫されているのが玄関の位置です 。道路からの視線をさりげなく遮る奥まった玄関は、住まう人のプライバシーを保護し、落ち着いた出入りを可能にします 。1階のLDKは約17畳の広さを持ち、人気の対面キッチンからはリビング全体が見渡せます 。
2階へ上がると、さらにその居住性の高さが分かります 。約7.4畳の広々とした主寝室に加え、お子様部屋としても最適な約6畳と約5.3畳2部屋の洋室を配置 。どのお部屋も収納が充実しており、自分たちの好きなインテリアを存分に楽しめる広さが確保されています 。
建物全体はZEH水準をクリアした高い省エネ・断熱性能を誇り、冷暖房効率が良く、家計にも環境にも優しい暮らしをサポート 。ふじみ野の静かな環境の中で、家族みんなが満足できる住まいがここにあります 。 -
パノラマ
新築
4,590万円
- / 103.50㎡ / 4LDK /予定 /2階建
- 駐車2台可
- 都市ガス
- ウォークインクロゼット
- システムキッチン
- 浴室1坪以上
- バルコニー
約35.97坪の土地に、延床面積約31.30坪という今回販売物件の中でも最大級の建物を実現しました 。
まずは圧倒的な広さのLDKにご注目ください 。パントリーを含めて約18.25畳という大空間は、大型のソファやダイニングテーブルを置いてもなお余りある余裕があります 。キッチン脇のパントリーは、ストック食材や調理器具をスマートに収納でき、常に整った空間でゲストを迎えられます 。さらに1階には約4.87畳の洋室があり、階段下の物入など隙のない収納計画が施されています 。
2階のプライベート空間も充実しています 。主寝室は約8.6畳の広さを確保し、大型のウォークインクローゼットが付属 。お気に入りの衣類をたっぷりと掛けられるだけでなく、生活感の出る荷物も丸ごと収納可能です 。また、他の2部屋も約6.1畳、約6畳と妥協のないサイズ感となっており、お子様の学習デスクやベッドも余裕を持って配置できます 。
これだけの広さを持ちながら、ZEH水準の省エネ性能によって光熱費を抑えた賢い暮らしができるのも大きな魅力 。開放感あふれるリビングと充実の収納が、心豊かな日常を叶えます! -
パノラマ
新築
4,190万円
- / 95.23㎡ / 4LDK /予定 /2階建
- 駐車2台可
- 都市ガス
- システムキッチン
- 浴室1坪以上
- バルコニー
- フローリング
「ふじみ野」という人気の街で、賢く理想のマイホームを手に入れたい方にこそご覧いただきたいのが新築戸建です 。全5棟の中でも戦略的な価格設定でありながら、土地面積は約35.81坪と十分な広さを確保しています 。
間取りは、空間の広がりを最大限に活かした設計が特徴です 。1階のLDKは約16畳あり、人気の対面式キッチンを採用 。キッチンに立ちながらリビングやダイニング、そして隣接する約4.5畳の洋室まで視線が通るため、家族の気配を感じながら家事を愉しむことができます 。この洋室の引き戸を開放すれば、20畳を超える圧倒的な大空間が出現し、週末のホームパーティーなどもゆったりと楽しめます 。
2階へ上がると、約8畳、約6.1畳、約6畳という、どのお部屋もゆとりのある3つの居室が並びます 。各居室には物入やクローゼットが配置されており、居住スペースを広く使えるよう配慮されています 。
また、環境負荷を抑え、家計を助けるZEH水準の省エネ住宅であることも大きなポイントです 。高性能な設備と断熱材が、将来にわたるランニングコストを低減 。価格・広さ・機能性の三拍子が揃った、納得の住まいと言えます! -
2,790万円
10階 / 76.59㎡ / 3LDK /築28年 /11階建
- 陽当り良好
- エレベーター
- リノベーション済
- リフォーム済
- バルコニー
- フローリング
坂戸駅周辺への引っ越しをお考えなら「グランステージ坂戸」。ご家族にも十分な広さの3LDK物件です。11階建ての建物もお探ししますので、ご安心ください。デザイン性のあるシステムキッチン付きなので、キッチンがお洒落なスペースになっています。住まい探しで大切なことは、信頼できる不動産会社を選ぶことです。弊社では、お客様としっかり向き合い、住まい探しをサポート致しますので、安心してお任せください。
-
3,400万円
- / 98.53㎡ / 4LDK /築10年 /2階建
- 都市ガス
- 陽当り良好
- バリアフリー
- ウォークインクロゼット
- システムキッチン
- カウンターキッチン
本物件は、ケイアイスター不動産が開発した大規模分譲住宅地「北欧ハウスヴィレッジ川越」内に位置する住宅です。かつて尚美学園のグラウンド跡地に計画的に整備された住宅地で、全98棟の街区型分譲地として誕生しました。北欧の街並みをコンセプトに、レンガ調の舗装道路や統一感のある住宅デザインなど、景観に配慮した美しい街並みが広がっています。分譲地内には公園も整備されており、子育て世帯にも嬉しい住環境です。
建物は平成28年築の4LDK。LDK約16.5帖を中心とした使いやすい間取りで、ウォークインクローゼットなど収納スペースも確保されています。白を基調とした外観は分譲地の街並みに調和しており、奥行きのあるバルコニーやウッドフェンスなど、住まいのデザインにもこだわりが感じられます。
敷地は前面道路に加え後方道路にも接する二面接道の区画で、通風や開放感のある立地が魅力です。前面道路は約7.4mとゆとりがあり、車の出入りもしやすい環境です。
周辺にはピアシティふじみ野、ビバモール埼玉大井など大型商業施設が揃っており、日常の買い物にも便利です。また、東武東上線「上福岡」駅行きのバス停も徒歩圏にあり、通勤・通学にも利用しやすい立地です。
整った街並みと生活利便性を兼ね備えた北欧ハウスヴィレッジ川越。分譲地ならではの住環境の良さをぜひ現地でご体感ください! -
ペット可
2,500万円
4階 / 77.70㎡ / 3LDK /築20年 /4階建
- ペット飼育可
- ペット相談
- エレベーター
- ウォークインクロゼット
- バス・トイレ別
- 室内洗濯機置場
「クレアメゾン鶴ヶ島ステーションフロント」:鶴ヶ島市エリアの新居にピッタリ。電車移動の多い方には、駅から徒歩2分の物件がおすすめです。南西向きの物件に住んでみませんか。ここからご覧下さい。自然なイメージを感じることの出来るフローリングとなっています。交通の利便性に優れ、住み良い環境が整う鶴ヶ島周辺は、住みたいエリアとして注目を集めています。ぜひ、不動産の購入をご検討してはいかがでしょうか。
-
ペット可
4,180万円
9階 / 60.84㎡ / 3LDK /築7年 /10階建
- ペット飼育可
- ペット相談
- 陽当り良好
- エレベーター
- 24時間ゴミ出し可
- 床暖房
宅配ボックス付き物件なので時間を気にせず荷物受け取りができます。快適な地上10階建ての物件。利便性の高い魅力溢れる角住戸はこちらとなっております。24時間ゴミ出し可能であれば、決まった日以外ゴミを出せないストレスから解放されます。不動産のご購入を検討しているが不動産の知識がなくて不安だと思う方でも、経験豊富な当社スタッフがしっかりとサポートするので安心してご依頼下さい。
-
5,090万円
2階 / 87.74㎡ / 3LDK /築20年 /31階建
- 陽当り良好
- エレベーター
- リフォーム済
- バルコニー
- フローリング
- システムキッチン
新生活を失敗せず、スタートさせたいならこちらの「アイムふじみ野タワー東館」はいかがでしょうか。5,090万円と、魅力的な価格の物件で新生活を始めませんか。専有面積が87.74㎡と十分な広さでゆったりと生活できるのではないのでしょうか。快適な生活を送れる3LDKの物件情報あります。お引越しをするなら、生活に欠かせない施設が揃っている富士見市で新たな住まいをお求めください。当社スタッフが新生活を快適にスタートできるよう、しっかりとサポート致します。
-
ペット可
3,780万円
3階 / 66.89㎡ / 2LDK+S(納戸) /築7年 /7階建
- ペット飼育可
- ペット相談
- エレベーター
- 耐震構造
- 24時間ゴミ出し可
- ウォークインクロゼット
スーパー「ヤオコー」がマンション目の前徒歩1分。総合病院「TMGあさか医療センター」が徒歩2分。コンビニも徒歩圏に複数ございます。東武東上線急行停車駅「朝霞台」駅から徒歩13分、武蔵野線「北朝霞」駅から徒歩12分の2路線2駅利用可能。朝霞市エリアでの住まいなら、住み心地も快適な「アンビシャス朝霞台」を是非ご検討ください。
城下町の情緒と現代の利便性が共存する「本川越」エリアを生活圏にできる立地です。西武新宿線「本川越」駅までは徒歩11分の距離で、駅周辺は非常に活気にあふれています。
駅前にはスーパーやファッション、雑貨店、レストランが充実しており、仕事帰りのお買い物にも困りません。また、駅前から続く商店街は多くの人々で賑わい、活気ある街並みが日々の暮らしを彩ります。さらに「本川越」駅は始発駅であるため、座って都心へ通勤・通学できる点も、忙しい毎日を送る方には大きなメリットとなるはずです。
物件自体も、2019年築という新しさが魅力です。15階建ての8階部分に位置する3LDK住戸で、豊かな陽当りを享受できます。全居室に収納を完備した機能的な間取りに加え、オートロックや宅配ボックスなど、セキュリティと利便性を兼ね備えた設備も充実しています。
また、東武東上線「川越市」駅やJR「川越」駅も徒歩圏内で利用可能なため、行き先に合わせて路線を使い分けられる3路線利用可能なフットワークの軽さも自慢です。大切なペットとも一緒に暮らせるこの築浅マンションで、充実した川越ライフを始めてみませんか。